2- к ЖК « БРАВО»
| Стоимость | 6 150 000 |
|---|---|
| Название ЖК | ЖК "Браво" |
| Стадия строительства | строится |
| Год постройки | 2025 |
| Площадь, кв.м. | 47.6 |
| Жилая площадь | 27.6 |
| Площадь кухни, кв.м. | 7.1 |
| Комнат в квартире | 2 |
| Этаж | 2 |
| Этажность | 17 |
| Материал стен | Монолитный |
| Ремонт | Черновая отделка |
| Статус Недвижимости Авито | Квартира |
| Тип продажи Циан | 214-ФЗ |
| Кадастровый номер | 02:56:050109:4756 |
| Балкон | Лоджия |
| Тип комнат | Изолированные |
| Санузел | Раздельный |
| Право собственности | Посредник |
| Тип парковки | Открытая во дворе |
| Тип Комиссия агента, %-руб | % |
| Способ связи avito | По телефону |
| Населенный пункт | Стерлитамак |
|---|---|
| Улица | Машиностроителей Улица |
| Номер дома | 77 |
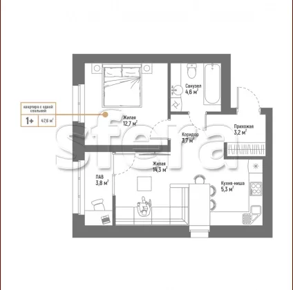
Продается 2-комнатная квартира от Риком в жилом комплексе "Браво". Дом будет сдан в 4 квартале 2023 года. Общая площадь-46,5кв.м., жилая- 27,6кв.м., гостиная-14,9,спальня-12,7 ,10., кухня-7,1кв.м., , коридор-3,9кв.м., санузел- 4,0 кв.м. Лоджия застеклена панорамными окнами-3,9 кв.м. Получистовая отделка: электропроводка-монтаж 100%, потолки-2,7 метров, кирпичные перегородки, улучшенная отделка, а это минимальные затраты на ремонт, витражные окна, шумоизоляция пола, корзины для кондиционеров, горизонтальная разводка отопления, пожарная сигнализация, домофон и интернет с TV заведены в квартиру, качественная входная металлическая дверь. Дом выполнен: монолитный железобетонный каркас с заполнением силикатного кирпича, вентилируемый фасад, огороженная территория. В холле планируется: зона рецепции с дизайнерской отделкой, бесшумные современные 3 лифта, система противопожарной безопасности, видеодомофоны, колясочные, вход в подъезд на уровне земли. Во дворе планируется: площадка для мини-футбола на искусственном газоне, площадка для баскетбола/волейбола на резиновом покрытии, турники и уличные тренажеры, парковочное озеленение, зона отдыха, зона для домашних животных, большая парковка, две детские площадки на безопасном покрытии для разных возрастов. Развитая инфраструктура: возле дома Сити-Молл, это новый центр города, детские сады 79, 94,31,73,10 и школы 1,23,11, лицей 1 и гимназия 5. Рядом с домом аптеки, продуктовые магазины, почта, банки, парк и аллея, ТЦ Сити-Молл, ТЦ Арбат. Балкон застеклен панорамными окнами-2,2 кв.м. Планировка Ш-образная, все окна выходят на восток, в сторону Сити-Молла и на аллею. Получистовая отделка: электропроводка-монтаж 100%, потолки-2,7 метров, кирпичные перегородки, улучшенная получистовая отделка, а это минимальные затраты на ремонт, витражные окна, шумоизоляция пола, корзины для кондиционеров, горизонтальная разводка отопления, пожарная сигнализация, домофон и интернет с TV заведены в квартиру, качественная входная металлическая дверь. Дом выполнен: монолитный железобетонный каркас с заполнением силикатного кирпича, вентилируемый фасад, огороженная территория. В холле планируется: зона рецепции с дизайнерской отделкой, бесшумные современные 3 лифта, система противопожарной безопасности, видеодомофоны, колясочные, санузел, вход в подъезд на уровне земли. Во дворе планируется: площадка для мини-футбола на искусственном газоне, площадка для баскетбола/волейбола на резиновом покрытии, турники и уличные тренажеры, парковочное озеленение, зона отдыха, зона для домашних животных, большая парковка, две детские площадки на безопасном покрытии для разных возрастов. Развитая инфраструктура: возле дома Сити-Молл, это новый центр города, детские сады 79, 94,31,73,10 и школы 1,23,11, лицей 1 и гимназия 5. Рядом с домом аптеки, продуктовые магазины, почта, банки, парк и аллея, ТЦ Сити-Молл, ТЦ Арбат. Отличная 2 квартира в ЖК "Браво". Высота потолка: 2.7 . Состояние объекта: Улучшенная черновая отделка. Тип дома: Монолитный. Номер в базе: 2116. Район: Западный мкр. Звоните



























